Measured Surveys & Planning Drawing Packs
White-label measured survey and planning drawing support for builders, architects, loft firms and developers.
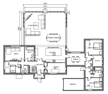
We provide measured site surveys, existing drawing sets, draft proposed options and final planning drawing packs to support your workflow on residential and conversion projects. Delivered on a fixed-fee basis with clear turnaround and 2 minor revisions included.
Prices for 2D CAD drawings start from £500 which include:
One in-person measured site survey.
Existing plans, sections and elevations.
Multiple draft proposed design options.
Final amended planning drawing pack.
Electronic issue for review and onward sharing.
How it works:
You send us the brief and site details.
We confirm scope and issue a fixed-fee quote.
We arrange and carry out the measured survey.
We produce the existing drawing set.
We prepare draft proposed options for review.
We complete agreed revisions and issue the final pack.
All drawings are created to professional standards and can be used for:
Planning applications
Builder quotations
Client and contractor coordination
All drawings produced will be sent electronically as PDFs so documents can be easily shared with everyone involved in the project.






Contact
Need extra drawing or visualisation capacity?
We support builders, architects, loft firms and developers with measured surveys, planning drawing packs and 3D visualisation on a white-label basis. Get in touch to discuss your workflow, turnaround needs and the type of support you want to outsource.
Email: info@goldringdesigns.co.uk
Phone: 07748965911
© 2025. All rights reserved.
