White-Label Drawing, Survey & 3D Visualisation Services
Subcontract support for builders, architects, loft firms and developers. Fixed-fee quoting, clear turnaround, and practical deliverables for overflow projects and one-off packages.


3D Rendered Images and video walkthrough for - Survey + Planning Drawing Pack
3D Digital Models and video walkthroughs help you and your client visualize proposed layouts and what the final external and internal appearance will look like. This option is very useful in more complex designs such as visualizing the additional stairway layout on a loft conversion or a large wrap around rear extension.
Best for: Builders / Loft firms / Architects / Developers.
Stage: RIBA 3.
Typical turnaround: 3–5 working days on top of Planning Drawing Pack
Revisions: 2 minor revisions included.
Pricing: Fixed Price Quote.
Coverage: South East and London
What we need from you:
Site Address
Client contact to organize initial site visit.
What we provide
3D Digital model in Revit Format.
3D Rendered images showcasing the proposed design of your project.
Video walkthroughs of your proposed design.


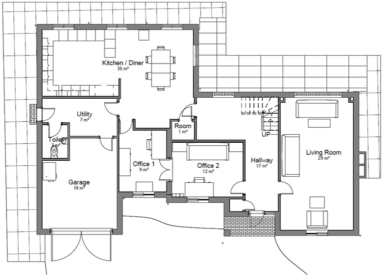
Measured Surveys & Planning Drawing Packs
White-label support for site surveys, existing drawings, draft design options and final planning packs for your client review and submission workflow. Based on your survey/planning PDF, this can include an in-person site survey, existing plans/sections/elevations, multiple draft proposed options, and a final amended pack.
Best for: Builders / Loft firms / Architects / Developers.
Stage: RIBA 0–3.
Typical turnaround: 10–15 working days.
Revisions: 2 minor revisions included.
Pricing: Fixed Price Quote.
Coverage: Southeast
What we need from you:
Site Address
Client contact to organize initial site visit.
What we provide:
One in person Site Survey.
Existing Plans, Section & Elevations.
Multiple Draft Proposed Design Options with Plans, Section & Elevations.
Final Plan Pack with clients chosen design with any required amendments.


Commercial to Residential Conversion Packs
With this pack we will travel to site and complete an accurate measured survey. We will then create the existing plans and work with you to create the proposed plan options for the commercial to residential conversion.
Best for: Builders / Loft firms / Architects / Developers. Stage: RIBA 0 - 3.
Typical turnaround: 15 - 20 working days
Revisions: 2 minor revisions included.
Pricing: Fixed Price Quote.
Coverage: South-East and London.
What we need from you.
Site address.
Client contact to organize initial site visit.
What we provide:
One in person Site Survey.
Existing Plans, Section & Elevations.
As much as three Proposed Design Options with Plans, Section & Elevations.
Final Plan Pack with clients chosen design with any required amendments.
Optional 3D rendered images and video walkthroughs
2D Plans Converted into 3D Digital Models
We can provide 3D rendered images and video walkthroughs of your 2D designs giving you or your client a clearer understanding of the proposed design before it is built.
Best for: Builders / Loft firms / Architects / Developers.
Stage: RIBA 3.
Typical turnaround: 5–10 working days.
Revisions: 2 minor revisions included.
Pricing: Fixed Price Quote.
Coverage: UK wide (Plans and photos of existing site required).
What we need from you:
Existing plans/elevations.
Proposed plans/elevations.
Site/location plan (if included).
Sections / roof plans (if included).
What we provide
3D Digital model in Revit Format.
3D Rendered images showcasing the proposeddesign of your project.
Video walkthroughs of your proposed design




Planning Submission Support
Planning submission support for firms that want help preparing forms, issue packs and validation responses as part of their own client workflow.
Please note: Council fees are paid directly to your council by the client.
Contact
Need extra drawing or visualisation capacity?
We support builders, architects, loft firms and developers with measured surveys, planning drawing packs and 3D visualisation on a white-label basis. Get in touch to discuss your workflow, turnaround needs and the type of support you want to outsource.
Email: info@goldringdesigns.co.uk
Phone: 07748965911
© 2026. All rights reserved.
