
2D Plans Converted into 3D Digital Models.
You provide us with 2D plans in any format and we will convert them into a high-quality digital model. From the model we can produce realistic rendered images and video walkthroughs to give you and your client a clearer understanding of your proposed design.
What to expect.
Product Includes:
3D Digital model in Revit Format.
2 minor revisions
3D Rendered images showcasing the proposed design of your project.
Video walkthroughs of your proposed design
Pricing:
Fixed price quote ranging from £300 - £1,000
Typical turn around time:
5 - 10 working days
Previous projects listed below
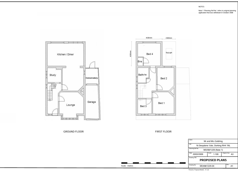
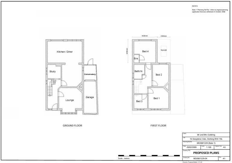
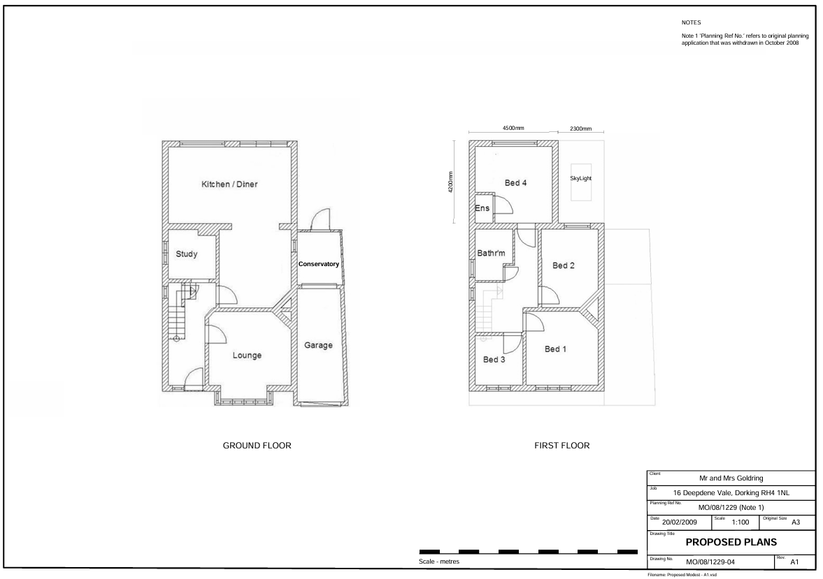
We take the drawing you provide in any format.
We will then use these 2D drawings to create detailed and accurate 3D models.






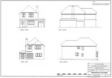
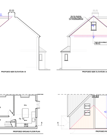
Three story wrap around extension from 2D Plans to 3D Digital Model
External renders showing the new bedroom, kitchen, utility, garage and loft conversion. These 3D renders gave the client a clearer understanding of what the proposed design will look like before being built.










Example two story rear extension Conversion from 2D Plans to 3D Digital Model
External renders showing the new bedroom, kitchen and utility showing the client a clearer understanding of what the proposed design will look like before being built.
Internal render showing new master bedroom with en suite to the rear of the property
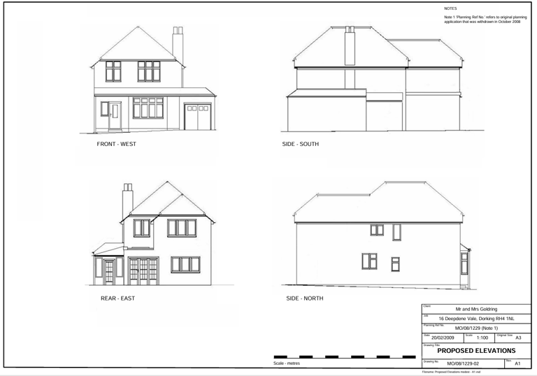
We converted these 2D drawing supplied by a client into the 3D visuals seen below.








External renders showing rear side of dormer loft conversion
Internal renders showing the new bedroom inside the loft conversion giving the client a clearer understanding of what the proposed design will look like before being built.
Example Semi Detached Dormer Loft Conversion from 2D Plans to 3D Digital Model.
Contact
Need extra drawing or visualisation capacity?
We support builders, architects, loft firms and developers with measured surveys, planning drawing packs and 3D visualisation on a white-label basis. Get in touch to discuss your workflow, turnaround needs and the type of support you want to outsource.
Email: info@goldringdesigns.co.uk
Phone: 07748965911
© 2026. All rights reserved.
